O nemovitosti

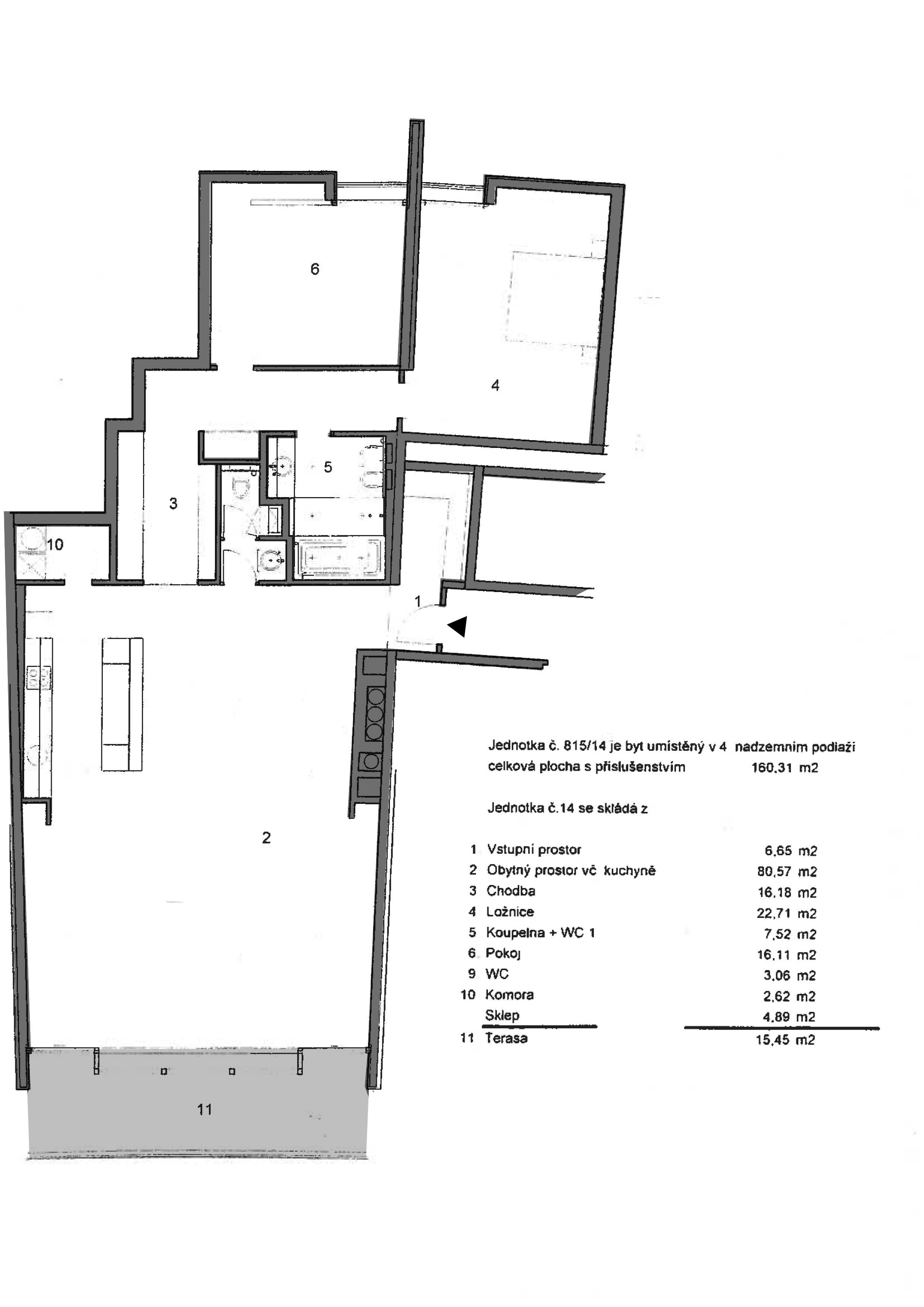
Světlý byt 3+kk s prostornou terasou k prodeji. Byt nabízí velkorysý obývací prostor s kuchyní a vstupem na terasu, ze které jsou panoramatické výhledy na okolní zeleň a město. V bytě jsou dále k dispozici dvě prostorné ložnice, koupelna s vanou a toaletou, samostatná toaleta a komora. Kuchyň je plně vybavena spotřebiči značky Miele. V bytě jsou dřevěné podlahy a kompletně zařízené koupelny ve vysokém standardu. Množství vestavěných skříní a úložných prostor. V domě je centrální plynová kotelna. K bytu náleží 2 parkovací stání a sklep.


Poplatky zahrnují všechny nadstandardní služby Rezidence XY jako je bazén, sauna, posilovna, squash i dětská herna. Celý areál je chráněn kamerovým systémem napojený na 24 hod. ostrahu v recepci domu.


Rezidence se nachází na jižní straně strahovského kopce v oblíbené rezidenční čtvrti Prahy 5 - Hřebenky. Ulice Na Hřebenkách bezesporu splňuje adresu širšího centra s krátkým dojezdem do centra města. Zastávka autobusu je necelých 5 minut chůze od domu a zastávka tramvaje necelých 10 minut. V pěší dostupnosti je park Ladronka a cca 10 minut autem obchodní centrum Nový Smíchov. V blízkosti rezidence najdete dostatek jedinečných a atraktivních míst pro sportovní vyžití a volnočasové aktivity včetně Ladronky a Petřínských sadů. Krátkou procházkou lze dojít k Pohořelci nebo navštívit historický areál Pražského hradu. Praktické je i sousedství s Prahou 6, ve které se nachází několik prestižních mezinárodních škol a snadný výjezd směrem na letiště Václava Havla, Plzeň nebo Karlovy Vary.

Mapa lokality

Více informací

Parkování : garážové stání
Balkon/ terasa: 15.45 m²
Sklep: Ano
Energetický štítek: G
Patro: 3
Status nemovitosti: volný

Poradíme vám s výběrem bytu i financováním

Díky dlouholetým zkušenostem a znalostem (nejen) pražského realitního trhu najdeme nemovitost přesně dle vašich představ. Jsme připraveni vám pomoci jak s nákupem, tak se všemi náležitostmi, které s ním souvisejí. Obraťte se na nás.

Kontakt

Mohlo by vás zajímat

Na Hřebenkách
Na Hřebenkách, Praha 5 232 m²
rezervace
ID: 503439
Info v RK
Timber Praha
Nekonečného, Praha 5 47 m²
Dostupné ihned
ID: 524715
7 855 075 Kč
Timber Praha
Nekonečného, Praha 5 57 m²
Dostupné ihned
ID: 524717
9 974 991 Kč